La casa peor diseñada que jamás hemos hecho.
La casa peor diseñada que jamás hemos hecho. Por lo general, solemos hablar de los éxitos de nuestra vida, y no nos gusta tanto comentar los pequeños fracasos o aquellas cosas de las que no estamos totalmente satisfechos. Pues hoy, en este artículo, vamos a ir en contra de esta tendencia y os vamos a contar una experiencia que no resultó verdaderamente frustrante y que, posiblemente, sea la peor casa que hemos diseñado jamás.

El ejemplo nos puede servir para darnos cuenta de los errores que se cometen muchas veces por falta de información, tozudez o malas prácticas. En realidad, no se trata de un trabajo donde nosotros no actuásemos de forma profesional, más bien la crítica va dirigida al promotor de esta casa, que sin duda, posiblemente haya cometido uno de los grandes errores de su vida, y que como luego contaremos, parece que no es capaz de asumir.
El proyecto que te vamos a contar surge de un encargo que nos realizaron para proyectar una vivienda unifamiliar en el centro urbano de un pueblo de Castilla la mancha. El propietario disponía de un solar entre medianerías dónde quería edificar una pequeña vivienda para usarla los fines de semana y los periodos vacacionales.
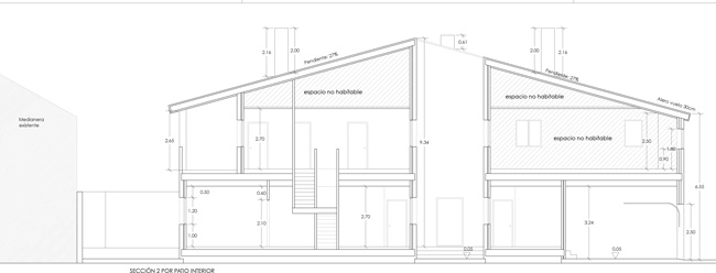
El solar era estrecho y con un fondo muy grande, la normativa municipal obligaba a construir de dos alturas y el propietario quería una casa de 250 m² pero que sólo ocupará una planta, lo que ya de principio era bastante absurdo. Lo primero que hicimos fue intentar convencerle de que construir una vivienda en una sola planta cuando nos obligaban a levantar dos alturas era muy poco eficiente, ya que ocuparíamos en planta casi la totalidad del solar y dejaríamos la planta superior vacía.
Este diseño en planta era realmente ineficiente, ya que por un lado, teníamos que construir 500 m², 250 m² por planta, lo que de por sí encarece enormemente la construcción. Además, nos veíamos limitados por el espacio, algo realmente increíble, ya que teníamos que meter todo el programa en una sola planta, lo que hizo que apareciesen espacios pequeños, grandes y largos pasillos, y en definitiva, una distribución muy forzada y absurda. Intentamos que el propietario entendiese que lo mejor era construir de una forma más compacta, pero al final no lo conseguimos, por lo que tuvimos que adaptarnos a sus exigencias. El coste de la construcción aumentó un 70% porque, entre otras cosas, y lo que es peor, había un 70% de volumen totalmente desaprovechado.
Curiosamente, durante la obra, cuando la propiedad se percató del desaprovechamiento de semejante volumen, insinuó en varias ocasiones que de haberlo sabido, se lo habría pensado.
Sus lamentos se demostraron poco consistentes, ya que durante la obra intentamos convencerle de cambiar el sistema de instalaciones que él había previsto desde el principio ya que era totalmente ineficiente. Se había convencido así mismo de que el mejor sistema de calefacción era mediante una caldera de gasoil, aunque le habíamos dicho que no era el mejor, sino posiblemente el peor de todos los posibles sistemas de calefacción y agua caliente disponibles hoy en día. Habíamos argumentado que si insistía en instalar un sistema de gasóleo tendría que colocar unas placas solares en la cubierta (a lo que en un principio se negaba rotundamente), y que sólo iba suponer un mayor coste si se comparaba con elegir otro sistema de calefacción.
Dejando a un lado sistemas para calefacción singulares como puede ser la geotermia, le comentamos las virtudes de otras alternativas como la de la aerotermía, una caldera de biomasa o incluso un sistema de calefacción por gas. Nada de eso le valía y finalmente instaló una caldera de gasóleo con un depósito enterrado. Él estaba convencido de que no era tan caro y que era lo mejor que podía hacer. Naturalmente, a los pocos meses utilizando la casa, nos hizo algún comentario sobre la abultada factura de gasóleo que estaba pagando.
La casa peor diseñada que jamás hemos hecho
En definitiva, parece absurdo que hoy en día se sigan realizando este tipo de proyectos tan ineficientes y absurdos, y sobre todo tan costosos. Es curioso ver como cuando uno va a comprarse un coche y vamos al concesionario y nos ofrecen el último invento en innovación tecnológica, no dudamos en creer ciegamente en el vendedor y terminamos gastando más dinero en un coche más moderno, sin embargo, cuando se trata del sector de la construcción, nos encontramos todos los días, increíbles opiniones sobre cómo se tiene que construir una casa o sobre los sistemas de instalaciones basadas en un completo desconocimiento técnico o en los consejos sin fundamento de algún amigo, vecino o familiar.
Nos hemos encontrado con situaciones realmente incómodas, desde el vecino de toda la vida que lo sabe todo sobre construcción y termina convenciendo al propietario para hacer cosas que no tienen ningún sentido a opiniones sobre la energía más barata en base a ofertas de tarifas por parte de la compañía, nos acordamos, por ejemplo, de un proyecto en el que instalamos una calefacción por hilo radiante eléctrico, porque el propietario estaba convencido de que la tarifa azul era la más barata y lo más económico actualmente en el mercado, porque se lo había dicho su primo suyo, o una casa en la que tuvimos que aguantar las críticas del constructor y en consecuencia del propietario, que opinaban que la estructura de forjados que habíamos previsto era totalmente innecesaria, según ellos, era suficiente con una solera de 10 cm sobre la que apoyarse toda la estructura de la casa.
En fin, acumulamos gran número de anécdotas que muchas veces nos hacen sentirnos frustrados en un mundo que sigue dominado por la ignorancia, la tozudez y el absurdo. Cuando estudiamos la viabilidad de un proyecto o una reforma nos damos cuenta de los costes de la inversión en sistemas más eficientes y vemos como sin duda alguna, en pocos años, el propietario estaría ahorrándose solo en calefacción más de 1000 € al año si siguieran nuestros sencillos consejos. Sin embargo, en el 90% de los casos terminamos aceptando las preferencias del cliente, y simplemente nos guardamos nuestras opiniones para nosotros mismos o para aquellos que nos quieren escuchar.












tqtp8e